ITK by ZPAS Кронштейн прямой для крепления блоков розеток в зоне Zero-U (2шт/компл) РФ

Характеристики
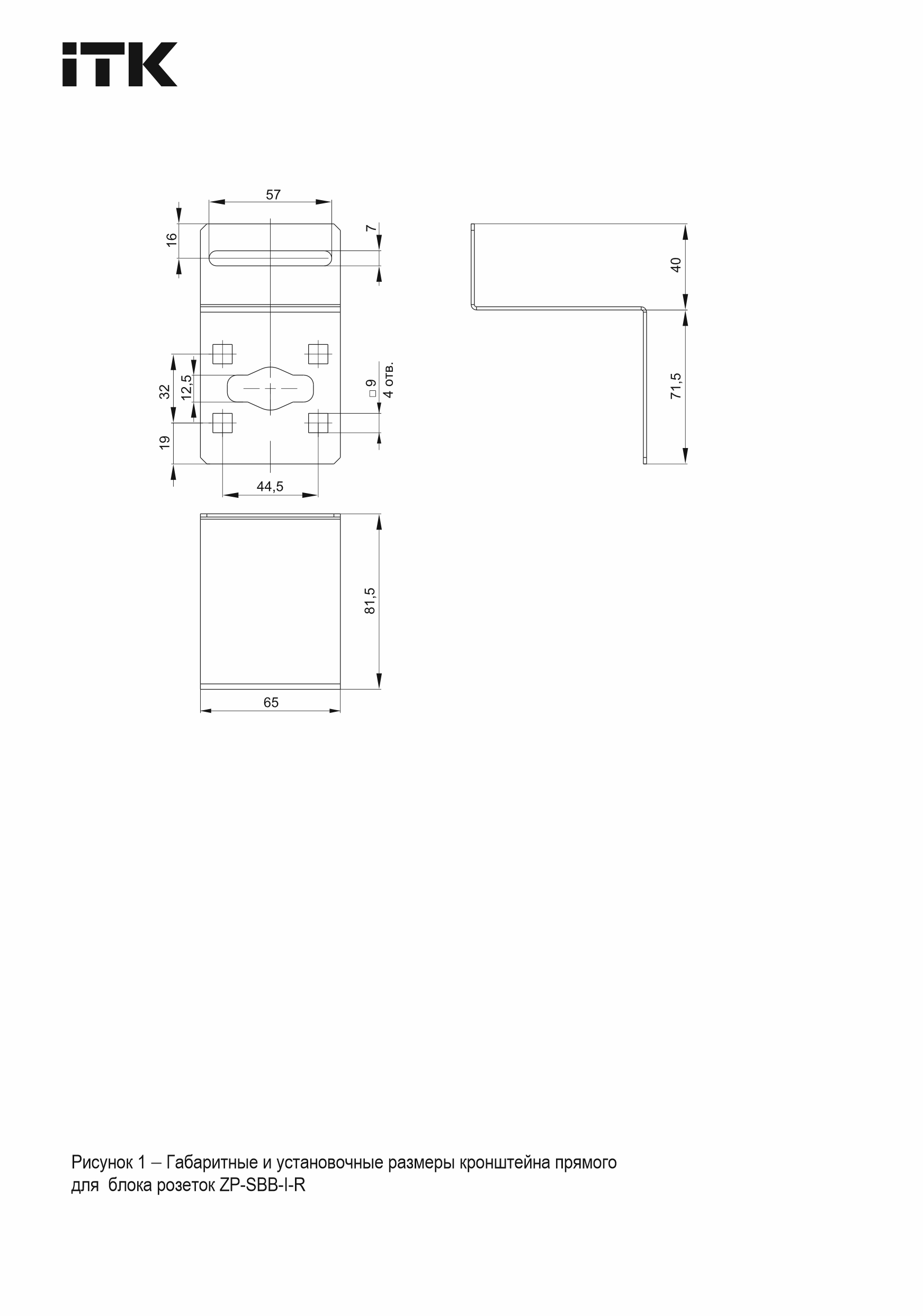
| Высота | 65 |
| Глубина | 81 |
| Климатическое исполнение | 04.2 |
| Материал | Металл |
| Модель или исполнение | Монтажный угловой кронштейн |
| Подходит для 19-дюймового монтажа | Нет |
| Температура эксплуатации | -5…40 |
Описание
Применяются для монтажа вертикальных PDU в зоне Zero-Unit.
Могут устанавливаться на несущий конструктив шкафа, центральный монтажный профиль, либо вертикальные органайзеры для прокладки кабельных трасс во внутреннем пространстве шкафов серии ZP.
Обеспечивают возможность крепления вертикальных PDU инструментальным и безынструментальным способом.
Производитель
ITK
Характеристики
| Высота | 65 |
| Глубина | 81 |
| Климатическое исполнение | 04.2 |
| Материал | Металл |
| Модель или исполнение | Монтажный угловой кронштейн |
| Подходит для 19-дюймового монтажа | Нет |
| Температура эксплуатации | -5…40 |
| Тип компонента | Монтажный угловой кронштейн |
| Толщина материала | 1.5 |
| Цвет | Серый |
| Ширина | 111 |
Документация
Сертификаты
274эп-14-2-7.pdf(pdf, 24.55 MB)
275эп-14-2-7.pdf(pdf, 24.9 MB)
4938 от 04.04.2023.pdf(pdf, 1.1 MB)
304эп-14-2-7 от 29.12.2025.pdf(pdf, 12.27 MB)
ВНИИПО_043 ТР ЕАЭС.pdf(pdf, 29.15 MB)
303эп-14-2-7 от 29.12.2025.pdf(pdf, 12.57 MB)
Паспорт
ITK_BY ZPAS_Kronshtein_bloka_rozetok_passp_ru-en_1.pdf(pdf, 2.78 MB)
ITK_Kronshtein_rozetok_passp_mult_1.pdf(pdf, 1.4 MB)
ITK_Aksessuary_Komplekty_instruction_ru_eng_3.pdf(pdf, 12.43 MB)
Листовка
listovka_ITK_by_ZPAS_Resheniya_dlya_COD_booklet.pdf(pdf, 1.69 MB)
Габаритные чертежи
ITK_BY ZPAS_Kronshtein_bloka_rozetok_passp_ru-en_1_G6.jpg(jpg, 172.76 KB)